Бибирево (11 мин. транспортом)
Нагорное пос. (Мытищи гор. округ)
Дата публикации: 3 октября 2025
Дата обновления: 16 октября 2025
+7 (495) 065-82-75
Название: ЖК "Датский квартал"
От застройщика: 0 квартир в продаже
8 658 216 Р
Бибирево (11 мин. транспортом)
Нагорное пос. (Мытищи гор. округ)
Дата публикации: 3 октября 2025
Дата обновления: 16 октября 2025
+7 (495) 065-82-75
Название: ЖК "Датский квартал"
От застройщика: 0 квартир в продаже
Этаж: 11 / 22
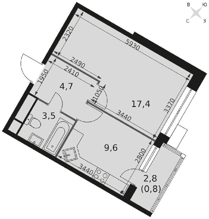
Общая: 36 м2
Жилая: 17,4 м2
Кухня: 9,6 м2
Комнаты: не указано
Балкон/лоджия: не указано
Лифт: лифт пассажирский
Окна: окна на улицу
Санузел: не указано
Мусоропровод: нет
Состояние квартиры: без отделки
Тип дома: монолитный
Год постройки: 2023
Территория: огороженная
Парковка: охраняемая
Статус сделки: продажа
Сделка: прямая продажа
Собственность: не указано
Основание права собственности: не указано
Последние квартиры в ЖК "Датский квартал"!
Продаётся 1-к квартира номер 999 общей площадью 36 кв.м. на 11-м этаже 17 этажного дома. Без отделки. Цена с учётом скидки!
Особенности квартиры:
- 10 мин. до 3-х станций метро
- Лесной массив под окнами
- Последние готовые квартиры
- Просторная спальня, в которой можно разместить большую кровать.
- Линейная планировка - максимальная функциональность и удобство.
- Увеличенная ширина окна/окон - больше света и визуального простора.
- Гибкая планировка - создайте пространство по своему вкусу.
- Можно оборудовать рабочее место - комфорт для работы и учёбы.
- Ниша под шкаф - компактное и удобное место для вещей.
- Балкон - открытое пространство для отдыха.
Информация о комплексе:
Ощутите прелесть жизни в маленьком европейском городке, не выезжая на пределы Москвы. Здесь всё рядом и продумано для вас: магазины, булочные, прачечные, аптеки и салоны красоты в шаговой доступности. Наличие кладовых позволит вам поддерживать идеальный порядок и уют в вашей квартире!
Мы учли каждую мелочь, чтобы вы могли наслаждаться повседневной жизнью- Двор без машин, закрытое, безопасное, охраняемое место с удобным доступом для вашего авто, более чистый воздух и гарантированное место для стоянки - и это далеко не все преимущества наличия подземного паркинга. Наличие кладовых позволит вам поддерживать идеальный порядок и уют в вашей квартире! Родители самых маленьких жильцов будут в восторге от колясочных, запирающихся на магнитный замок. Весь малогабаритный семейный транспорт - коляска, велосипеды и самокаты - прекрасно будет ждать вас здесь до следующего раза. Вымыть колеса коляски или лапы питомцу можно в специальных помещениях, расположенных рядом с колясочной.
Транспортная доступность:
Менее 1км от МКАД: рядом Осташковское и Алтуфьевское шоссе; 15 минут до метро "Алтуфьево", "Бибирево", "Медведково"; 7 минут пешком до ближайшей остановки общественного транспорта.
Внутренняя инфраструктура:
Ощутите прелесть жизни в маленьком европейском городке, не выезжая на пределы Москвы. Здесь всё рядом и продумано для вас: магазины, булочные, прачечные, аптеки и салоны красоты в шаговой доступности.
2 муниципальных детских сада и муниципальная школа
Медицинский центр
Магазины, аптеки, салоны красоты, кафе, булочные на первых этажах комплекса. Контактное лицо: Отдел продаж [#7541559#]